Wohnung in Graz zu mieten - 1665/7649
2 KlicksAnbieter
| Name | Remax Classic, Graz |
| Anfrage senden | |
| Telefon | 0316/ 296000 |
| Adresse | Grabenstraße 178 |
| 8010 Graz | |
| www.remax.at/de/ib/remax-classic-graz | |
Detailinformationen Inserat # 283573
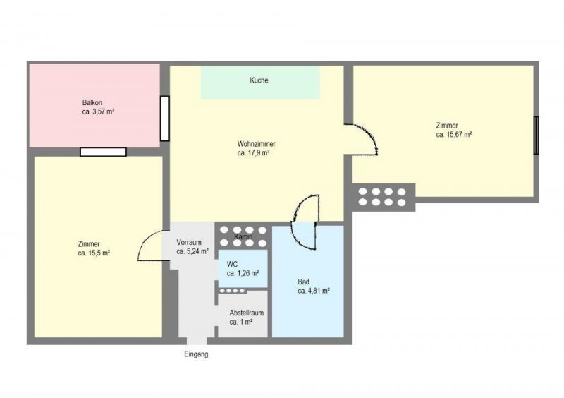
3 Zimmer, 63 m² Wohnfläche. Ihre Ansprechpartnerin: Nina Renner RE/MAX Associate Marchel & Partner Immobilien GmbH +43 699 104 36 089 renner@remax-classic.at RE/MAX Classic Grabenstraße 178 8010 Graz


Kérastase Chroma Absolu Fondant Cica Chroma 75ml
Gastroback Desing Reiskocher 3l
Blanco Küchenspüle schwarz ca. 78x50cm
DeWalt DWE625
Trennstreifen je 100Stk weiß
Alpina Digital Airfryer 8L 1800W
Diverse Nive Deospray 4x150ml
BGS Letter Punch Set 27x 8mm 2034
Obelink Easy Air Mobil 320 Connected 1 571188
Samsung Galaxy Tab A8
Tommy Hilfiger Kindermütze
Caudalie X Gabrielle Kosmetiktasche ca. 30x14cm
NIVEA Q10 Anti-Falten Power Regenerierende Nachtpflege 50ml
Estée Lauder Pure Lippenstift, Farbe 333




































