Wohnung in Bärnbach zu mieten - 1663/1793
226 KlicksAnbieter
| Name | Remax White Horse Voitsberg (More) |
| Anfrage senden | |
| Telefon | 03142/ 28020 |
| Adresse | C. v. Hötzendorfstr. 16 |
| 8570 Voitsberg | |
| www.remax.at | |
Detailinformationen Inserat # 283649
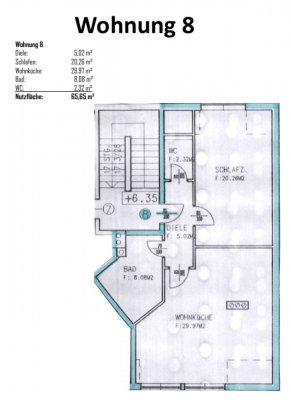
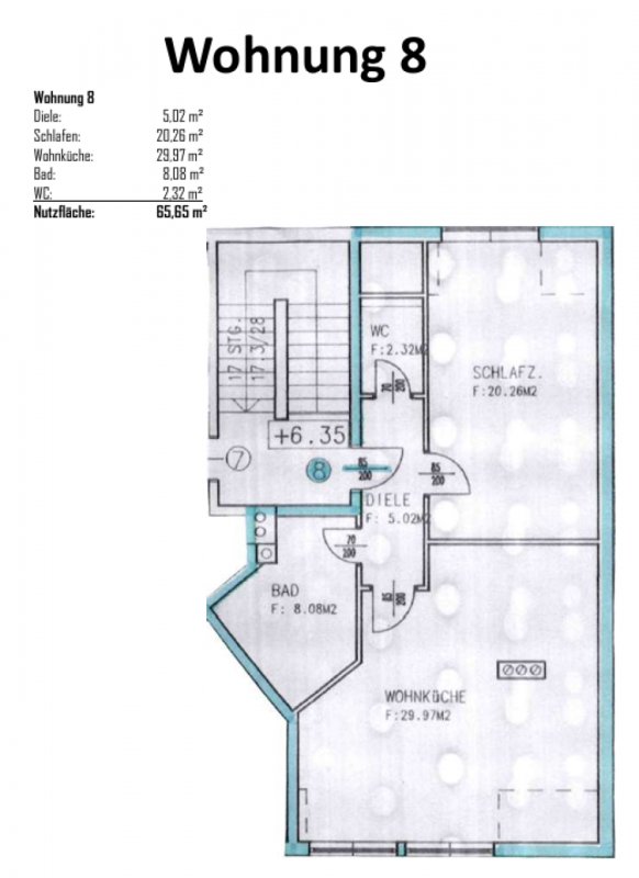
2 Zimmer, 66 m² Wohnfläche.


Basis pH Sanfte Frische Duschbad je 400ml
Scarpa Skischuhe Axial Alpine Hybrid
7Auri Handyhülle + Panzerglas Set für iPhone 16
Window Film 50x100cm
Eukanoba Breed Specific Rottweiler Adult 12kg
Greenwoods Veggie Adult Dog 12kg
Wolfsblut Black Bird Adult 12.5kg
Wolfsblut Rangr Lamb 12.5kg
Samsonite Koffer 42L
Replaceable Sanding Paper 60 Stück
Ankerkraut Roasted Garlic 95g
Kapten&Son Sonnenbrille
8in1 Flavours Hunde Snack je 113g
Hager Sicherungseinsatz NH Fuse Link Mespatroon, 63A, 690V
CYL Adult Sleep Strips je 30Pcs 



























